We have a Plan!

Slowly but surely- we officially have a Plan!

Special thanks to our local Architect, Jason Heichelbech who helped us bring our vision to life. As you can imagine, not many people are setting out to build a new house that looks old, so we started from a historical plan on Architecturaldesigns.com and got to work. I’ll share the plans here for those of you who are design nerds like me, but Jason helped us think beyond the functionality of the floor plan, and more importantly the structure of the house to ensure it stands the test of time.

We visited the lot recently now that we have a mental picture of our real house (yay!) and I took some photos with my disposable. Official plans below.

Now for the main event!

For the exterior, you’ll have to use your imagination a bit. We plan to choose a red vintage brick for the entire exterior, and some elements of greige/sage green accents for the trim. Our house will feature a foyer upon entrance, with a formal Dining Room to your left, and pocket doors leading to the Library/Parlor to your right. Continuing straight you’ll meet a small powder room (picturing beautiful wallpaper here) and our staircase. In true craftsman style we will have heavy exposed wood trim throughout the main floor, and Mission-style chandeliers. Entering the Living Room, we’ll have a fireplace, or perhaps a wood-burning stove, built-in shelves and stained-glass windows above each shelf on either side of the fireplace. French doors will lead you to our covered back porch, and the Kitchen will be somewhat opened from the Living room, though not a true island.

We prefer more of a closed floor plan, as is true to the time period, but as far as finishes go, Chandler and I are very much up-in-the-air for this room. Kitchen functionality has changed so much since the 1910s, so we’re still figuring out how to mesh modern use with historical touches. More to come on where we land, but if any of you happen to own an old house, and have any ideas- we are all ears.

Next, we go to perhaps my favorite part of this house- the Butler’s pantry. This little pass-thru will feature beautiful cabinetry for small appliances like my precious espresso machine, a small sink, and some narrow French doors to our pantry. The hostess in me is in love with this room already, and we plan to fit at least a 10 person dining table into the next room, so we’ll need lot’s of storage for the extra table settings ie. Spode Christmas Tree Plates :)

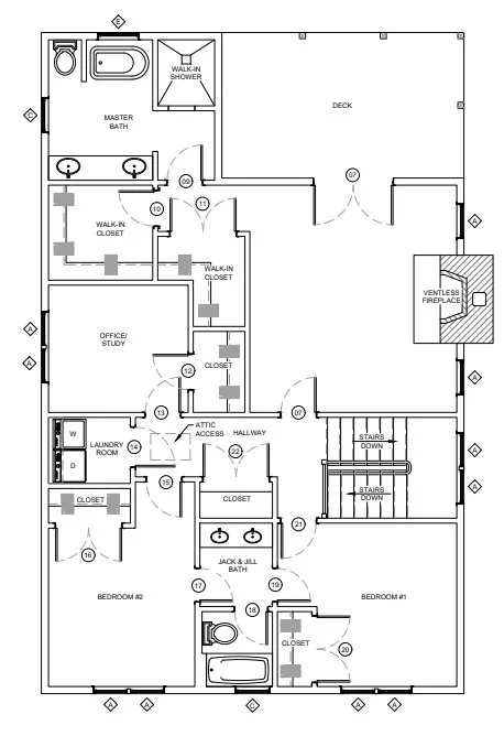
Upstairs is where we made the majority of our edits. Many historical plans don’t include 2 very important things: large closets, and a real laundry room. Our starting plan was slightly more modernized, though still needed a zhuzh. In the Master Bedroom we added a fireplace, both closets were made walk-ins, and replaced the single door to the balcony with french doors (yes again with the French). I’m already imagining a daybed on our second story balcony and family movie nights with a projector.

Now what?

Because we’re building this house on our own, with the (large) help of Chandler’s dad, we now start the process of pricing everything. We’ll start with lumber and move to windows, fireplaces, trim, flooring, lighting, electrical, concrete, you name it. Once we start digging, the real fun begins.

Thanks for following along, more to come!

Next
Next

Let’s Build a Sears House